100+ SEAT RESTAURANT
5 Central Street, Peabody MA
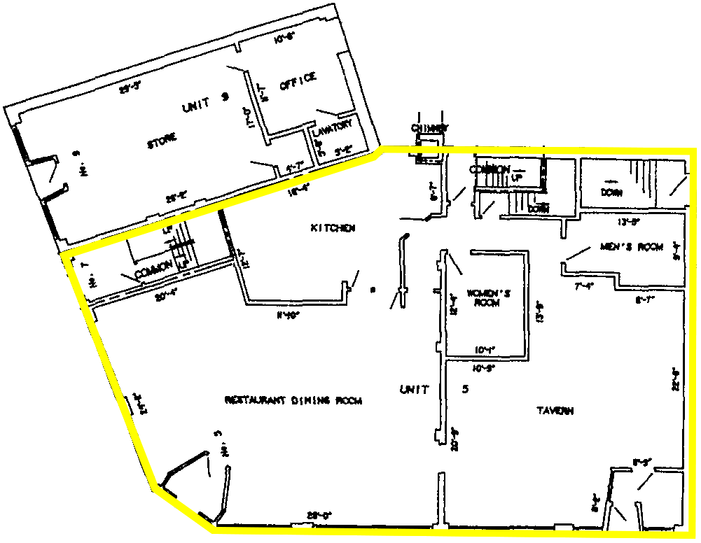
The Mega Group has available 5 Central Street which is a 100+ seat restaurant that will need very little to re-open its doors. The Rosenfelt Building is a prime downtown hotspot, directly across the street from the Peabody Municipal Courthouse and has four (4) municipal parking lots just steps from its front entrance. The location has had a history of successful endeavors, most notably Mike & Lill’s Black Sheep Pub & Grille and current occupant The NexMex Thing. The floor space is 5,640 +/- square feet in size and features a full service kitchen, two (2) handicap accessible restrooms, a very attractive dining room and separate bar area. There is a basement space in the lower level with a walk-in already in place, dry storage, food preparation and service. Food and interior images are historic examples of the past tenancies. This is a commercial lease assignment that will transfers all rights and obligations from the current tenant to a new tenant, with the assignee directly responsible to the landlord for the remainder of the 5 year term.
5 Central Street in Peabody Massachusetts is just two miles from the North Shore Shopping Center and on the major route between Route 128 N/S and downtown Historic Salem.
Apply through the City of Peabody for a full liquor license for this location.
.










